Công năng sử dụng :
Tầng 1 : 1 phòng khách + 1 phòng bếp + 1 phòng ăn + 1 phòng ngủ + 1 WC
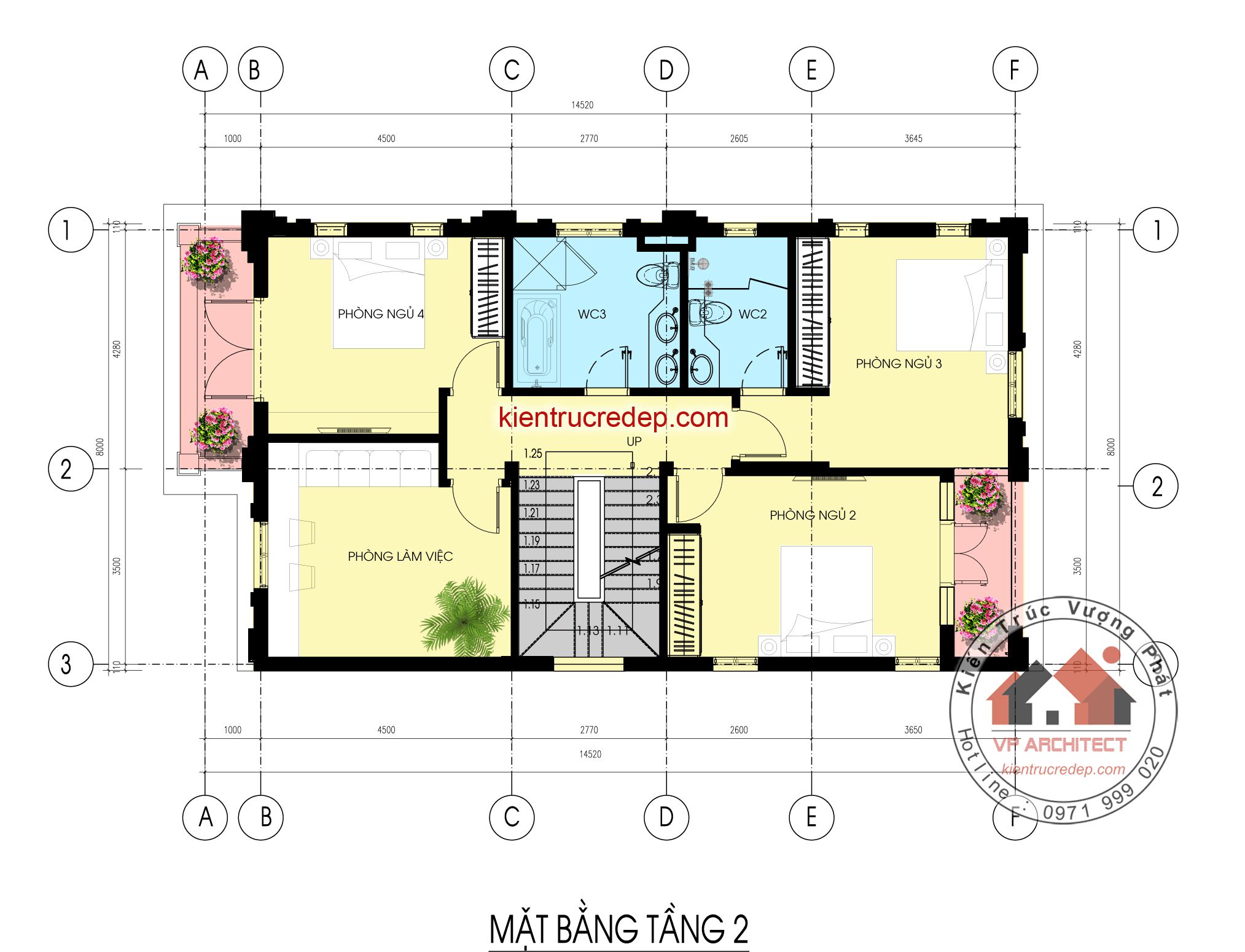
Tầng 2 : 3 phòng ngủ + 1 phòng làm việc + 2 WC
Tầng 3 : 1 phòng thờ + 1 phòng tập thể dục + 1 phòng giặt + sân phơi
Mặt tiền đắp nổi với nét kiến trúc pháp sang trọng , Sảng chính vươn rộng với trụ cột trang trí hoa văn tỷ mỉ, thể hiện tính thẩm mỹ cao của chủ nhà. Ban công và trụ cột trang trí hoa văn phào chỉ làm ngôi nhà không những đẹp về tỷ lệ, sang trọng và tỷ mỉ đến từng chi tiết nhỏ.
                                    
Mặt bằng có sân vườn rộng gồm vườn cây, thảm cỏ nhật, kết hợp với hồ cá Koi tụ khí đầy đủ các yếu tố phong thủ đẹp nhất của 1 ngôi nhà,
Không gian mở với các ô của lớn làm không gian biệt thự càng rộng .Chủ đầu tư rất hài lòng về sản phẩm của kiến trúc Vượng Phát !!!!!!! .
          